Best Portable Restroom Trailers for Events & Construction
Portable restroom trailers are essential for events and construction sites without built-in facilities. They provide clean, private restrooms that enhance guest comfort and meet sanitation needs efficiently. Thinking of using one for your next project? Discover their benefits, types, and why they might just be the best choice below.
- Portable restroom trailers enhance guest comfort and accessibility at various events, including weddings, festivals, and construction sites.
- Different types of restroom trailers, such as standard, luxury, and ADA-compliant, cater to diverse needs and preferences, ensuring hygiene and convenience.
- Proper setup is essential for the functionality and compliance of portable restroom trailers, impacting user experience positively.
Portable restroom trailers are a game-changer for events and construction sites. They allow you to host events in locations without existing restroom facilities, making outdoor weddings, markets, and festivals more feasible and enjoyable. These trailers provide a private and comfortable space for attendees, encouraging them to stay longer and enjoy the event to the fullest.
For large gatherings like concerts and festivals, restroom trailers offer ample facilities to manage high attendee volumes efficiently. Moreover, corporate events, team-building activities, and college campus orientations benefit from the convenience and comfort of portable bathroom trailers. Even for remote film and television shoots, these trailers ensure that the cast and crew have access to clean and convenient restroom facilities.
Beyond events, portable trailers are essential for emergency response situations. From setting up a remote office or command center, offering laundry services, or creating a safe place to sleep at night, our trailers are multifunctional and meet your needs in uncertain times. Take this 10 Station Restroom Trailer on our website for example. Used by companies like Cal Fire during wildfire season, these portable units provide safe, clean and reliable facilities for crews on any job and the necessity of having these facilities cannot be overstated. If you are responding to a natural disaster and need facilities for your crew, contact our sales team to get your quote started and read more about our emergency site solutions at NRT Sales on our website here
Types of Portable Restroom Trailers
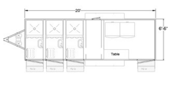
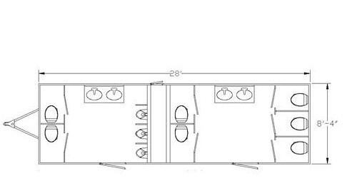
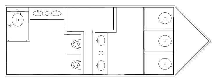
Portable restroom trailers come in various types to meet different needs and preferences. Standard restroom trailers are designed for general use and typically include multiple stalls and sinks to accommodate high traffic. These are perfect for construction sites and large public events where functionality is key.
For those seeking a more upscale experience, luxury restroom trailers offer premium features like high-end finishes, climate control, and superior amenities. No matter your need, we can build a trailer you’ll be thrilled with. Take a look at our “Build Your Own” offerings on our website here
Additionally, specialized trailers such as shower and laundry trailers and ADA-compliant trailers are also available, ensuring accessibility for individuals with disabilities with features like wheelchair ramps, spacious interiors, and adult changing tables.
Standard portable restroom trailers are a significant upgrade from traditional portable toilets. They come equipped with flushing toilets, providing a much more pleasant environment. The inclusion of running water for handwashing greatly enhances cleanliness, making them a superior choice for any event or site.
Comfort is a priority with standard restroom trailers, as they often include air conditioning and heating to ensure a comfortable experience regardless of the weather. Ventilation systems are also a standard feature, maintaining fresh air circulation and reducing unpleasant odors commonly associated with portable toilets.
These trailers are designed for their intended use to handle high traffic, making them ideal for large gatherings and construction sites where sanitation is crucial. Whether for a weekend festival or a long-term project, standard portable restroom trailers offer reliable and comfortable facilities for all users.
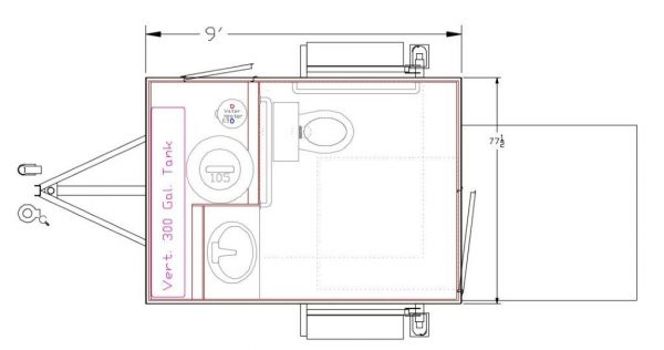
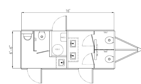
ADA-compliant portable restroom trailers are designed to accommodate individuals with disabilities, ensuring accessibility and comfort for all guests. Each trailer reflects a strong commitment to service and inclusivity, which enhances customer satisfaction. Take a look at all of the ADA floor plans we offer at NRT Sales on our website here
Key features of an ADA-compliant trailer include wide doorways, grab bars, adult changing tables, and sufficient space for wheelchair users. Self-closing doors and automatic shut-off valves at sinks enhance accessibility. These trailers require a minimum of two feet of clearance around them for proper access and setup.
It’s essential to assess the delivery location and ground conditions before setting up an ADA-compliant portable restroom trailer. Most of these trailers need a power source and confirming local regulations regarding placement and operation is also advisable, as permits may be required for your trailer.
Luxury portable restroom trailers elevate the standard portable restroom experience with upscale features like lighting, amenities and elegant interiors. These features make each unit an excellent choice for high-profile events like a wedding, corporate gatherings, and exclusive parties.
Shower trailers are an excellent option for events requiring personal facilities alongside restroom access. These trailers come with their own fresh water tank and ensure attendees can freshen up comfortably with hot water and a clean place to dress and a hook for clothing and towels.
Upgrades can include hand wash stations and laundry facilities, further improving sanitation options. Shower trailers are particularly useful for long-duration events, festivals, and disaster response situations where cleanliness is crucial and a portable unit is necessary.
Portable restroom trailers can be tailored to meet various client needs, offering both commercial and luxury features. Customization options include layout adjustments, the addition of amenities, and design modifications to suit specific requirements. Take a look at our options here to start building your own trailer on our website.
Regular upkeep is necessary to keep portable restroom trailers functioning properly and in line with accessibility standards. This includes emptying waste tanks, checking for leaks in plumbing systems, and work to prevent overflow. At NRT Sales, we partner with manufacturing facilities in New York, Indiana, Illinois and Texas to ensure we’re building your trailer with longevity in mind. Our new units come with standard manufacturer’s warranties, and we offer an “Investment Return/Buy Back Program”
Before using a trailer, ensure that essential supplies like toilet paper and hand soap are adequately stocked for the next event. During an event, regularly check and replenish supplies to maintain functionality.
After each use, it’s crucial to clean surfaces and disinfect high-touch areas to prevent bacteria build-up and maintain cleanliness. Keeping plumbing tools on hand can quickly address any clogs or issues that arise.
Four single-stall pod style restrooms
The shipping and delivery of portable restroom trailers typically requires a lead time of 2-3 days but differs based on a variety of factors and the needs of customers. Our sales team can work with you to determine a window that meets the needs of your event. Freight charges for delivery are quoted separately, ensuring transparency in shipping costs. Some companies offer a setup service that includes leveling the trailer and ensuring all utilities are connected properly.
Deciding between renting and purchasing a restroom trailer depends on various factors. Purchasing can be cost-effective for regular event planners, an outdoor event or construction, as it avoids recurring rental fees over time. Frequent renters might eventually spend more on rentals than the initial purchase cost if used regularly.
Owning a restroom trailer allows for complete customization, enabling branding and tailored features that rental units typically do not offer. Key determinants for choosing between rental and purchase include frequency of use, budget flexibility, and long-term business goals.
Renting a restroom trailer is usually more suitable for one-time events or seasonal needs, allowing users to select various styles without long-term commitments. Trailers are available for exterior customization whether you purchase or rent.
Portable restrooms are suitable for a variety of events, including:
- Special events
- Weddings
- Film and production sets
- Construction projects
These portable bathrooms have received positive feedback from customers for being clean, well-stocked, and aesthetically pleasing, making a helpful intended positive impression at events for worry-free facilities.
Renting a restroom trailer provides flexibility and support for your business and customers, making it a practical choice for many scenarios.
Customer testimonials highlight the professionalism and friendliness of the NRT Sales team who helps navigate the process from start to finish. If you would like to learn more, reach out to our sales team through our website here
These testimonials illustrate the effectiveness and reliability of portable restroom trailers, providing real-life support, detail and examples of satisfied users.
Portable restroom trailers offer a versatile and essential solution for events and construction sites. From standard and ADA-compliant units to luxury and shower trailers, there’s a portable restroom option for every need. These trailers provide comfort, accessibility, and convenience, making them a valuable addition to any event or project.
Whether you choose to rent or purchase, portable restroom trailers ensure that your guests and workers have access to clean and comfortable facilities. Consider these options for your next event or construction project. Reach out to our sales team through our website to discuss our inventory here
What types of trailers are available?
Portable restroom trailers include standard options, luxury models, ADA-compliant units, and shower trailers. Each type is designed to provide a specific level of comfort and accessibility for your guests in different settings. Take a look at our website for the latest listings and to get in contact: https://nrtsales.com/
How long does it take to deliver portable restrooms?
Delivery of a portable restroom trailer typically requires a lead time of 2 to 3 days. Every delivery is different and it’s essential to plan shipping accordingly to ensure timely availability for your event. Explore shipping possibilities by getting in contact with our sales team through out website here
Can a portable restroom and shower trailer be customized?
Yes, portable restroom trailers can be customized with layout changes, additional amenities, and various design options to meet the specific needs of guests and customers.
What maintenance is required for portable bathrooms?
Regular upkeep for portable restroom trailers involves emptying waste tanks, checking for leaks, stocking supplies, and thoroughly cleaning surfaces. These tasks ensure the trailers remain functional and hygienic for users.
Should I rent or purchase a portable restroom trailer?
It’s advisable to rent a portable restroom trailer for one-time events and consider purchasing if you require it for regular use, as this can be more cost-effective in the long run. Analyze your frequency of use and budget to decide if you are suited for rentals or purchase. Contact our sales team through our website to talk through options here





























































