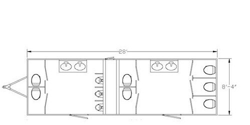
10 Station 28′ WB Restroom Trailer
10 Station
Our expertise extends beyond simple sales transactions, as we provide comprehensive consultations to help determine the exact specifications needed for your particular application, whether you’re operating a construction company requiring heavy-duty equipment haulers or managing a disaster response team needing rapidly deployable mobile facilities.

We had an immediate need and NRT did not fail to deliver a top-notch product at a great value. From sales, to production to delivery there was continued communication and professionalism.
Our new trailer Combination Trailer arrived as scheduled, transport service was excellent, great communication and timely delivery. Trailer looks great, we are very happy with it. We are in the process of getting everything set up today, plan to have it ready for the holiday weekend.
The Team at NRT made ordering new a 5 station ADA Restroom Trailer easy! They delivered a high-quality product at the best price. We highly recommend NRT for any Specialty Trailer need.
NRT Team,
We greatly appreciate your work with us to get things moving as quickly as possible to get us out of this bind. The trailers has been great. The University is very happy with the Trailer.
Thanks again,
I want to say we have had an absolutely great experience dealing with NRT, assisted us with everything question and every issue that came up. Couldn’t have went smoother. Thank you Jim especially.
NRT exceeded our expectations in every way. I highly recommend National Restroom Trailers for any custom build on restroom, shower, laundry or command centers.









![]()
![]()












![]()
![]()


![]()
![]()




































![]()
Mobile Facility Experts
Professional trailer solutions delivered when and where you need them. From luxury restroom trailers to ADA-compliant units, we provide reliable mobile facilities for events, construction sites, and emergency response.
Find quality pre-owned trailers inspected and ready for immediate use.