8 Station 20′ WB Restroom Trailer
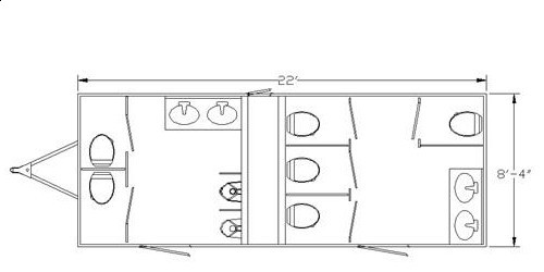
8 Station 24′ WB Restroom Trailer
8 Station


























































