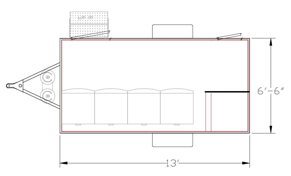
4 Unit Laundry Trailer
Contact for Price
IN STOCK FOR SALE
- 13ft
- 4 Unit Laundry Trailer
- 4 LP Powered Whirlpool Washer and Dyers
- 450 Gallon Waste Tank
- LP On Demand water heater
- LP Supply Tanks
- Power roof vent fans
- Fold down aluminum table
- Available in 12 weeks.
More New Trailers


























































