Contact for Price
IN STOCK FOR SALE
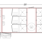
- 25 ft 8 Station Shower and Laundry Trailer
- 6 showers 3/3 split each shower has a lockable changing area stall doors
- 2 sinks per side
- 2 Stackable Washer and Dryer (LP) sets
- 900-gallon waste tank
- 225-gallon water tank
- AC
- Heat
- Power Vents
- Generator
- LP On Demand water heater/ LP supply tanks
- Available in 12 – 14 weeks.


























































